Construction drawing Set
Detailed Construction Document Sets: Ensuring Clarity and Precision for Seamless Project Execution
Site Plan:
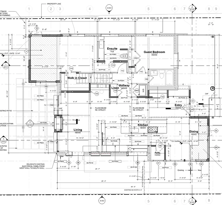
Floor Plans:
Elevations:
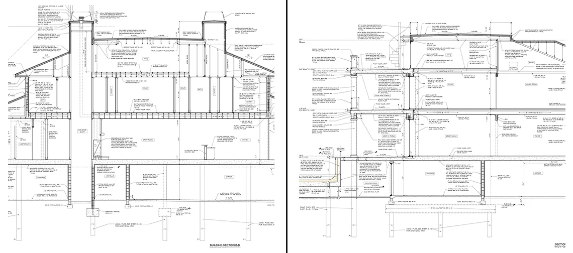
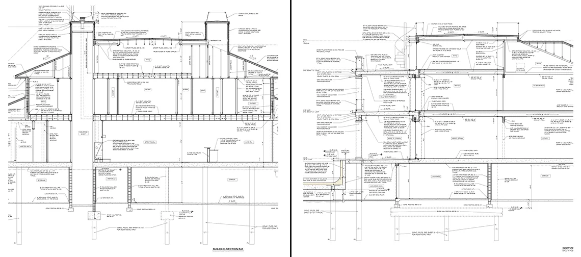
Sections:
Details:
Elevations:
Structural Drawings:
Mechanical, Electrical, and Plumbing (MEP) Drawings:
Interior Elevations:
Reflected Ceiling Plans (RCP):
Landscaping Plans:
Fire Protection and Life Safety Drawings:
For more information on our Architecture, Construction, and Drawing services, write to us at info@developcad.com
Thank you for providing the final coordination files and sheeted-up drawings in such a short timeframe. We had already commenced the construction phase, and it would have been a great loss if the areas had not been coordinated.
Our team can confirm that the final issue of Site Views A, B, and C meets our required standards for layout, resolution, and quality.
Impressive work! The drafts are good and match our company standards. We are comfortable outsourcing all of our future CAD requirements to DevelopCAD.
The BIM model that was submitted for our commercial project was fantastic. My team is currently reviewing the bill of quantities that was also submitted, and we are pleased to inform you that we approve of the work that was done. We are looking forward to moving ahead with the project and hope that it will be as smooth and efficient as the previous one.

