Steel Fabrication Shop Drawing Expertise
Crafting Precision: Steel Fabrication Shop Drawings for Seamless Manufacturing and Construction.
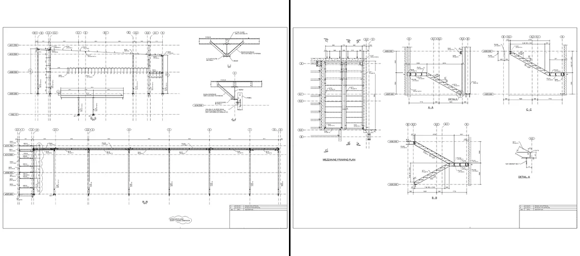
DevelopCAD offers a wide range of structural steel shop drawing services, such as millwork, steel, sheet metal, and woodworking shop drawings. Our team of steel structural drafters and modelers consists of highly skilled and knowledgeable professionals. We provide professional steel shop drawing services for a variety of structural steel shop drawings for structural steel parts, trusses, reinforced concrete, pre-cast concrete, buildings, and millwork.
Our steel fabrication shop drawings are precise and created by steel detailers. They offer specific guidance for the fabrication and assembly of steel components in a construction project. Steel detailing for fabrication drawings is crucial for verifying the accuracy and quality of the steel fabrication system. Steel fabrication shop drawings are generated by steel detailers using specialized computer-aided design (CAD) software. Steel detailing is frequently done with software like Tekla Structures, AutoCAD, and Revit. The steel structural shop drawings involved in-depth geometric presentations of every single steel component. This includes columns, beams, braces, connections, and other structural components.
Our shop drawings for steel structures define the class and grade of steel to be used, as well as any unique coating or treatment mandates. As a structural steel drafting provider, we also obey material specifications for industry standards and project specifications.
We are a provider of steel fabrication design services; each steel part has exact measurements and tolerances listed. This covers all of the important parameters needed for steel fabrication, such as lengths, widths, thicknesses, and hole sizes. Welding details are a very important part of steel fabrication shop drawings. In our steel fabrication detailing services, we define the type of weld, the weld size, and the location of welds for joining steel members. As a steel fabrication service provider, we also provide bolt details, such as sizes, kinds, and positions. In the steel component shop drawing, we show assembly instructions are provided for bolted connectors. In our structure steel drafting services, we provide detailed illustrations showing the connections and interactions between various steel members. This covers details about bracing, beam-to-column connections, and any other connection-related information. The steel fabrication shop drawings may furnish an assembly order to guide fabricators on the order in which elements should be fabricated and assembled. This allows for assured productivity in the fabrication system.
Our 3D steel fabrication shop drawings are a critical communication tool between the design team, steel detailers, and fabricators. They play an important role in ensuring that the fabricated steel elements match the intended design, meet quality standards, and fit seamlessly into the overall construction project.
Our structure Fabrication shop drawings services include :
- Detailed drawings of steel members
- Anchor setting plan
- A hard copy of prefabricated building components
- Fabrication instruction
- Connection details and dimensions of the different sets of drawings
- Fabrication notes and dimensional mechanical details
- Structural shop drawings
- Steel shop drawings
- Column shop drawings, concrete shop drawings
- Construction documents
Do you have any questions regarding Structural Steel Shop Drawing Services? Get answers to all of your questions by getting in touch with us today at info@developcad.com
Thank you for providing the final coordination files and sheeted-up drawings in such a short timeframe. We had already commenced the construction phase, and it would have been a great loss if the areas had not been coordinated.
Our team can confirm that the final issue of Site Views A, B, and C meets our required standards for layout, resolution, and quality.
Impressive work! The drafts are good and match our company standards. We are comfortable outsourcing all of our future CAD requirements to DevelopCAD.
The BIM model that was submitted for our commercial project was fantastic. My team is currently reviewing the bill of quantities that was also submitted, and we are pleased to inform you that we approve of the work that was done. We are looking forward to moving ahead with the project and hope that it will be as smooth and efficient as the previous one.

